Tent Cabin in Omori / HUNE ARCHITECTS

Tent Cabin in Omori / HUNE ARCHITECTS - Interior Photography, Wood, HandrailTent Cabin in Omori / HUNE ARCHITECTS - Image 3 of 19Tent Cabin in Omori / HUNE ARCHITECTS - Interior PhotographyTent Cabin in Omori / HUNE ARCHITECTS - Image 5 of 19Tent Cabin in Omori / HUNE ARCHITECTS - More Images+ 14

Tokyo, Japan
  • Architects: HUNE ARCHITECTS
  • Area Area of this architecture project Area:  72
  • Year Completion year of this architecture project Year:  2025
  • Photographs
    Photographs:Yurika Kono
  • Lead Architects: Kota Tamaki, Julia Li, Sei Hayashi, Koh Inami
  • Category: Houses
  • Engineering & Consulting > Structural: Graph Studio
  • Engineering & Consulting > Environmental Sustainability: Studio Nora
  • Engineering & Consulting > Other: Haruka Shoji (Textile Design)
  • General Contractor: Akashoshin Kaihatsu Ltd
  • City: Tokyo
  • Country: Japan
More SpecsLess Specs
Tent Cabin in Omori / HUNE ARCHITECTS - Interior Photography
© Yurika Kono

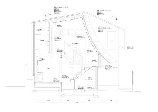
Text description provided by the architects. This is a two-storey timber house designed for a young couple and their two children. Each family member has their own passions and rhythms, they wished for a home with a variety of places to retreat into and yet remain connected- so that their days could flow together without crowding into one another.

Content Loader

Project gallery

See allShow less
About this office
Cite: "Tent Cabin in Omori / HUNE ARCHITECTS" 04 Dec 2025. ArchDaily. Accessed . <https://www.archdaily.com/1036525/tent-cabin-in-omori-hune-architects> ISSN 0719-8884

You've started following your first account!

Did you know?

You'll now receive updates based on what you follow! Personalize your stream and start following your favorite authors, offices and users.